See all 10 photos
Overview
- Updated On:
- 24 января, 2024
- 3 Bedrooms
- 1 Bathrooms
- 78.00
- Year Built: 2019
Квартира расположена в северной части Кракова. Такое расположение предлагает идеальный баланс между близостью к центру города и в то же время тишиной и доступом ко всем удобствам. В шаговой доступности магазины, поликлиника, школы и детские сады, что делает проживание в этом комплексе чрезвычайно удобным.
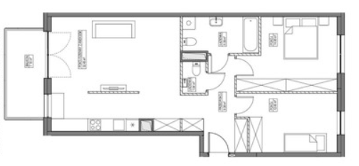
Квартира состоит из:
- просторная гостиная, соединенная с кухонным уголком (32,45 м2),
- 2 спальни (14,95 м2 и 12,49 м2),
- ванная комната с большой душевой кабиной, ванной и встроенной стиральной машиной (6,39 м2),
- туалеты (1,84 м2),
- зал (9,38 м2),
- балкон (7,18 м2).
Квартира двухсторонняя, окна выходят на общественный дворик и тупик, что обеспечивает тишину и комфорт. В усадьбе также есть детские площадки. В квартире много эстетически интегрированных шкафов и ящиков, что делает ее по-настоящему функциональной.
К квартире принадежит (оплачивается дополнительно 120 000 злотых) 2 парковочных места (НЕ на платформе) и большая кладовая (7,68 м2).
Address: Ul. Banacha
City: Краков
Area: Prądnik Biały
State/County: Malopolskie
Country: Польша
Open In Google Maps Property Id : 22849
Price: PLN 1,250,000
Property Size: 78.00
Rooms: 2
Bedrooms: 3
Bathrooms: 1
Год строительства: 2019
Материал: Кирпич
Этажность: 5























